Leave a Message

Thank you for your message. I will be in touch with you shortly.

Explore Our Properties

Property Description

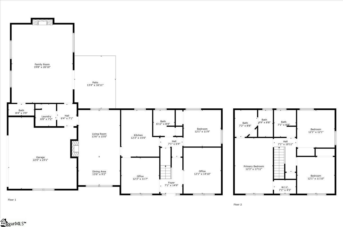
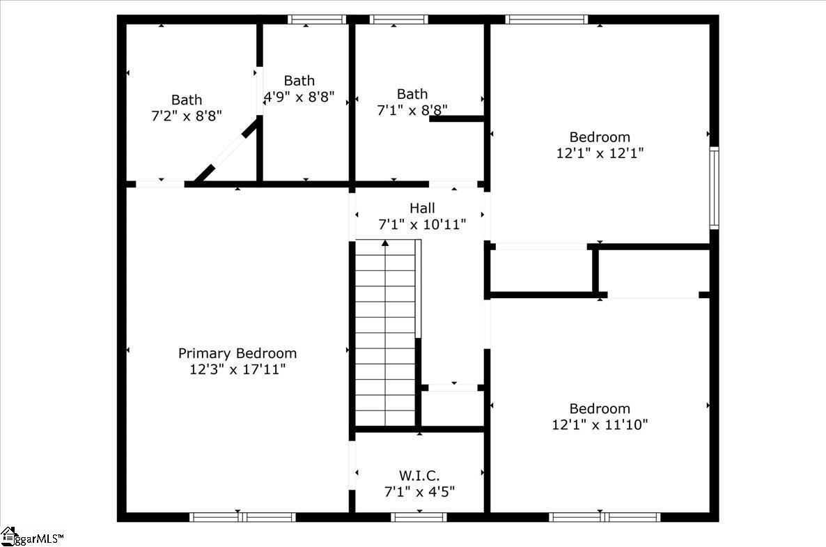
Stunning All-Brick Home with Pool, Walkable to Downtown Fountain Inn & Swamp Rabbit Trail Welcome to this beautiful 4-bedroom, 3.5-bath all-brick home located within walking distance to Downtown Fountain Inn, Fountain Inn High School, and the Swamp Rabbit Trail Head, featuring a scenic 1.5-mile out-and-back trail. This home features crown molding throughout most of the home and is surrounded by mature trees and gorgeous landscaping. Inside, you're greeted by a sitting room to the left and a dedicated office to the right. The sitting area flows into the spacious living room with hardwood floors, a brick wood-burning fireplace, and an open dining area. The updated kitchen has GE Profile appliances, granite countertops, a farmhouse sink, and a pantry, with a bedroom and full bath conveniently located on the main level. From the living area, step into the walk-in laundry room and then into the large den, which features a half bath, built-in bookcase, another brick fireplace, and doors leading to the backyard oasis. Upstairs, you'll find the primary suite with a full bath and walk-in closet, plus two additional bedrooms and a full hall bath. Outside, enjoy a private retreat with a fenced in yard, patio, in-ground pool, and shade trees--perfect for entertaining or relaxing. This home truly has it all: spacious living, charming details, and a prime location!

Overview

Property Status
Sold
Lot Size
0.85 Acres
MLS ID
1569163
Property Type
Residential
Year Built
1978

Features & Amenities

Total Area
2,963 Sq.Ft.
Architecture Styles
Traditional
Stories
2
Garage Spaces
2.0
Water Source
Public
Utilites
Cable Available
Pool
In Ground
Roof
Composition
Lot Features
1/2 - Acre, Few Trees
Parking
Attached, Concrete
Heat Type
Multi-Units
Air Conditioning
Electric, Multi Units
Laundry Room
1st Floor, Walk-in, Laundry Room
Fireplace
Wood Burning
Appliances
Disposal, Dryer, Washer, Free-Standing Electric Range, Double Oven, Microwave, Gas Water Heater
Other Interior Features
Bookcases, Ceiling Fan(s), Granite Counters, Pantry
Sewer
Public Sewer
Substructure
Crawl Space
Disability Features
Attic Stairs Disappearing
Elementary School
Fountain Inn
Middle School
Bryson
High School
Fountain Inn High
Sales Price
$450,000
Real Estate Tax
$2,948/yr

Downloads

100 Belmont Drive

Schedule a Tour

I would love to help you see this beautiful home! As a full-service brokerage, we can help you tour. Please submit an offer, and answer questions about the buying process.

Thank you

for your interest in 100 Belmont Drive, Fountain Inn, SC 29644

100 Belmont Drive
Navigate
100 Belmont Drive
explore in 3d

I'm Interested In

100 Belmont Drive

or
  • CallAmy Twitty

    License #105899

    (864) 350-1946
  • Follow Me on Instagram